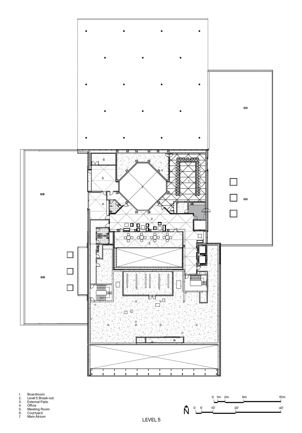
Ismaili Center Houston
Houston is a sprawling, park-laden city on the edge of the Gulf of Mexico in south eastern Texas. Clouds flit across its blue sky as hurriedly as its ground is still. Not all that far west of New Orleans, its coast extends the character of the Mississippi Delta, with bayous, brackish waterways and low-lying, flood-prone land, writes Jeremy Melvin.
Founded in 1837, it was named after Sam Houston, one of the heroes of Texas’ war of independence from Mexico. Petrodollars and transport connections, originally through water but soon spawning railways and later roads, have made it the state’s most populous city, as well as shaping its architecture: its motley collection of skyscrapers sport names like Pennzoil, Gulf and Exxon – many designed by those denizens of unthreatening, (to corporates) soulless corporate American architecture, like Cesar Pelli, IM Pei and Philip Johnson.
One of the largest groups of towers marks its enormous medical zone, and somewhere in the mix is Rice University, with buildings by British architects Sir James Stirling and John Outram. The confluence of medicine and the thriving city draw people across the Americas for medical and retail therapy. Meanwhile petrodollars also influence its cultural offer: Renzo Piano’s Menil Foundation, legendary for its wonderful, daylight filtering roof, and its offshoots including the Rothko Chapel and a small gallery devoted to Cy Twombley was founded by a fortune made from oil exploration.

View across the water to the entrance, below the social hall (Photo credit: Iwan Baan)
The city’s Ismaili Center, designed by Farshid Moussavi and recently opened, extends both its cultural and architectural character. It appears as a series of cuboid forms shimmering against the dynamic sky. It sits above the level of a 500 year flood in an 11 acre site adjacent to Buffalo Bayou Park landscaped by landscape architects Nelson Byrd Woltz to manage both the water flows and reflect the traditional role of water in Islamic design. It is, in line with the policy of the Aga Khan Foundation (the Aga Khan is the spiritual head of the Ismaili community worldwide), both rooted in its place and reflects Islamic culture. Its size and height give it a presence in what is otherwise a rather drab suburban setting, though close to the city’s theater and museum districts, and is intended to reach out to the community. ‘This building may be called an Ismaili Center, but it is not here for Ismailis only’, Prince Rahim Aga Khan V (whose father Prince Karim Aga Khan IV, initiated the foundations’ legendary architecture awards and died earlier this year) announced at the opening, ‘It is a place for all Houstonians to use, a place open to all who seek knowledge, reflection and dialogue’.

Aerial view, looking over the site from north (bottom) to south (top). (Photo credit: Iwan Baan)

Site section showing the 500 year flood level. The basement park can mitigate flooding
Despite there being six Ismaili Centres in various cities across the world including London, Lisbon, Dubai and Toronto, it is very hard to pin down the architectural characteristics of the building type. It caters partly but not entirely to religious, educational, and social functions, as well as offering a range of cultural activities, from performance to exhibitions. Each of the centres is architecturally different, both picking up on the character of its location and with architects free to choose from the rich range of Islamic architecture.

Moussavi, an Iranian born Briton who was educated at The Bartlett and Harvard where she is now professor of architectural practice, has also been a juror on a previous cycle of the Aga Khan awards, and so is well placed to blend American and Islamic culture. Part of her academic research investigated how the perimeter of large ‘blank box’ buildings might be less blank, drawing on often overlooked theorists like Gottfried Semper to put forward contemporary ideas about ornament. At Houston, the façade is especially striking, prominently a light, slightly reflective marble which picks up the movement across the sky, and formed from subtly shaped blocks, enhances shadows as the light falls. This effect, intended to give a sense of lightness to the large mass, and slightly disguises several interlocking cuboid volumes which make up the building.

View of the atrium, with silk screens visible on the bottom right (Photo credit: Iwan Baan)

A tapestry in stone
In effect a rainscreen, Moussavi describes the facade as a ‘tapestry in stone’, reflecting the traditional Islamic skill giving fabric a rich visual character, and here it intrigues without giving much away. Also prominent on the exterior are verandahs or ‘eivans’ on each façade which give every space access to the exterior. A dense wall, planting and flowing water on the western edge of the site and acoustic treatment to the eivan ceilings dampen traffic noise to make conversations audible. Some of the eivans are at high level, recalling the peristyles of classical and Islamic architecture, and offering views across the low lying roofs in the immediate area, to Houston’s more distant taller buildings. Houston is rarely too cold to be outside but it does rain, so covered outdoor space makes sense. The largest, on the north, can accommodate up to 800 people.

View across the atrium, showing the staircase flanking the ceremonial entrance to the prayer hall, and furniture (Photo credit: Iwan Baan)

Entering from the south, visitors pass through a generous foyer leading to the central atrium. This is a magnificent space, with fine acoustics for musical performance and well suited to large communal gatherings, marked by a 45 degree offset which introduces a diagonal (reason to be revealed later), with a dramatic staircase ahead and all under a pattern of floors and galleries which shape the space as it rises following the 45 degree geometry. This is another reference to Islamic tradition, geometrical patterns, and here comes together to allude to infinity – the infinite presence of God. It also floods the space with light, with views to the outside east and best past a café, education and meeting rooms, and a space for temporary exhibitions. Artworks from the permanent collection, some specially commissioned, are displayed throughout.

View up the atrium, past the staircase with the large eivan ceiling through the window (Photo credit: Iwan Baan)
Materials and forms combine to give this space a special quality. The finishes are high quality, with generous specially designed furniture and particular features, such as the silk sheets pressed (and protected) between sheets of glass which give a shimmering, ethereal quality – as well as another reference to Moussavi’s interest in surface and to Islamic tradition. There is an easy logic to moving through the building: many of its parts are visible from most others and the routes are easy to navigate. Avoiding the need for signage was one of the aims.

The prayer hall, with the slit window indicating the direction of Mecca (Photo credit: Iwan Baan)

Axonometric showing the structural beams spanning the prayer hall and supporting the eivan
On axis with the entrance, and beyond the staircase, is the prayer hall, in some ways but not explicitly the most important space in the building. Entered through a vestibule where worshippers leave their shoes. A partial veil marks the limits of the space for worship. At first sight it appears to be a large, even slightly bland space but it gradually offers a degree of revelation. Here the reason for the diagonal becomes clear: it indicates the direction of Mecca and so determines the orientation for praying, made apparent through the only window. The textured wooden walls provide a sense of warmth and enclosure, while the ceiling is magnificent. Made up of two layers of screens to suggest boundlessness, it picks up on the diagonal motif of the atrium but in the form of a surface rather than a volume, as if the infinite is somewhere above rather than part of the earthly space. Spanning this size of room, with the large northern eivan directly above it, took a considerable amount of ingenuity from engineers AKTII, with very deep beams. There could be no vibration.

View across the north eivan looking west. The delicate structures of the eivans resemble traditional peristyles (Photo credit: Iwan Baan)
There are other striking volumetric set pieces. One is the hall above the entrance. South facing, the stone façade casts mottled shadows across its wall and floor, potentially reinforcing (or diverting from) the lectures which take place here. Above is a black box theatre, which will be available to the broader community as well as Ismailis. At the top is a fine cenobitic boardroom, again available for community organisations as well as the center itself. Close by is a private courtyard for staff and volunteers – who do most of the work in the center, to relax and take refreshment.

The social hall, above the entrance (Photo credit: Iwan Baan)
The late Aga Khan started a wide ranging programme of cultural and communal initiatives including the architectural awards and the slowly increasing number of Ismaili Centres. All are geared towards advancing Islamic culture and belief, not as a hermetic phenomenon but as a vital part of the cultures and societies which it encounters and with which it co-exists. The new center in Houston enhances this goal, to a great extent through its architecture. As Moussavi says, ‘any one building influences things outside itself. We act locally and use physical elements but try to keep the bigger picture alive’. What this generates shows how ‘buildings can be relevant’ to their culture, climate and community.





Founder Partner
